Wikipédia:Atelier graphique/Images à améliorer
Le but de cette section de l'Atelier graphique est de retoucher, refaire et améliorer des images pour illustrer les articles de Wikipédia. Les Wikigraphistes se chargent de traiter les requêtes dans la mesure du possible. Certaines requêtes peuvent être refusées ou rester en l'état pour diverses raisons.
- Si votre demande concerne la cartographie, les animations, les blasons ou les logos, cliquez sur le bouton correspondant :
- Dans tout autre cas, cliquez sur le bouton :
Faites-le vous-même ! N'attendez pas qu'un wikigraphiste s'occupe de votre demande ; l'atelier est parfois surchargé. En quelques minutes voire plus, réalisez vous-même votre amélioration d'image à l'aide de plusieurs didacticiels mis à votre disposition. Voir aussi la section Wikigraphistes (onglet en haut de la page). Les wikigraphistes seront également présents pour vous aider dans l'apprentissage des outils de retouche photo.
Les images à travailler doivent être :
- Sous licence libre (GNU, GFDL, CC ou PD) afin de pouvoir être modifiées ;
- Utiles à Wikipédia (le travail effectué servira-t-il à l'encyclopédie ?) ;
- Potentiellement améliorables, ce qui exclut les images de qualité très médiocre ou dont la résolution est insuffisante.
Quelques conseils afin de faciliter le travail des Wikigraphistes :
- Prendre l'objet sur un fond d'une couleur uniforme/monochrome, contrasté avec l'objet, avec une bonne qualité d'image (la réduction du bruit ayant ses limites) ;
- Importer le fichier sur Commons (nécessité d'avoir un compte) sous un nom concis et clair ;
- Choisir le format d'image le plus judicieux.
Les images peuvent être enregistrées dans plusieurs formats différents. Voici un résumé des formats les plus couramment rencontrés sur l'Atelier :
- le JPEG est idéal pour les photographies et les dessins de grandes dimensions, car il compresse l'image. Dans la mesure du possible, essayez de nous apporter vos photographies au format JPEG (voire la version TIFF ou RAW convertie en JPEG qualité maximale, si votre appareil photo le permet) ;
- le PNG compresse l'image sans la dégrader et permet de gérer la transparence alpha. Il est très utilisé pour les images nécessitant une transparence du fond ; [Voir un exemple]
- le GIF est très déprécié car il est limité à 256 couleurs et parce qu'il ne peut être affiché qu'en taille réelle dans les articles : un GIF agrandi ou réduit sera fortement dégradé à l'écran. Les images GIF seront automatiquement converties en PNG ; les animations GIF seront, si possible, remplacées par des vidéos OGG.
- le SVG permet de faire des dessins techniques, des illustrations simples, des tableaux et graphiques pouvant être agrandis sans pertes. Ces images sont traduisibles et très facilement modifiables par la suite, ce qui facilite notre travail. [Voir un exemple]
Pour les travaux déjà réalisés ou pour les requêtes refusées, vous pouvez consulter nos archives.
Pour les demandes qui n'ont jamais été traitées, consultez notre page des demandes mises en sommeil.
Requêtes traitées
[modifier le code]Requêtes refusées ou annulées ce mois
[modifier le code]Requêtes qui traînent
[modifier le code]Requêtes à traiter
[modifier le code]Diagramme Carto du tram de Montpellier
[modifier le code]Article concerné :
Travail demandé par Zaizone (discuter) le 19 décembre 2025 à 23:10 (CET)
Requête : Demande de conseils pour améliorer ce diagramme carto du réseau de tram de Montpellier, intégrant la ligne 5 qui ouvre le 20 décembre 2025. L'idée serait de proposer le diagramme pour illustrer l’article Tramway de Montpellier mais je crois qu'il pourrait être amélioré graphiquement.
J'ai déjà intégré certaines corrections proposées par @Lyon-St-Clair mais il resterait les stations Rives-du-Lez, Saint-Eloi et Saint-Roch qui seraient à dédoubler (et renommer) car les différentes lignes de tram ne s'arrêtent pas sur les même quais. Il me semble que cela va complexifier la lecture et que ça sera difficile à mettre en œuvre, qu'en pensez vous ?
Petite note : le fichier comporte une sorte de "patch" concernant la station Boirargues, en effet celle ci sera déplacée en Janvier 2026 et l'ancienne station prendra le nom de Soriech. Graphiquement, il suffira de supprimer le calque qui comporte le patch pour que le diagramme soit à jour.
Image(s) à travailler :
Discussions et avis des Wikigraphistes :
Zaizone (discuter) 19 décembre 2025 à 23:10 (CET)
- Bonjour Zaizone
Honnêtement ce schéma me semble très bien. Le seul point c'est la "correspondance courte par voie publique" que j'ai du mal à saisir. Je ne dupliquerais pas les stations par contre, les quais ne sont pas si loin que ça l'un de l'autre, ça risque de compliquer la lecture (et le diagramme est là pour informer/éclaircir l'article, pas pour servir de guide sur place à mon sens). beau boulot. PS:à titre perso je ne mettrais pas mon pseudo sur l'image, c'est globalement non recommandé même si pas interdit. --Triton (discuter) 19 décembre 2025 à 23:33 (CET)
- Bonjour Zaizone et Triton
La correspondance par voie publique c'est typiquement deux stations distinctes mais proches. Par exemple le cas des trois stations Gambetta, Gambetta - Chaptal et Gambetta - Saint-Denis : ce sont trois demi-stations situées dans un rayon de 200 mètres, permettant de changer entre les lignes 3 et 5. Il y a d'autres exemples remarquables en France, comme à Rennes avec les stations de métro République et Saint-Germain par exemple. - Pour le cas des noms des stations comme Gare Saint-Roch et Rives du Lez, je propose un entre-deux : on laisse comme c'est sur la carte, mais on on ajoute un encart permettant de détailler. Cdlt, Lyon-St-Clair [Hon hon hon] 20 décembre 2025 à 11:34 (CET)
- J'oubliais aussi, pour le Bustram : le pointillé me semble pas adapté, en général sur une carte de transport ça indique une ligne en construction ou exploitée qu'à certains services... et justement le chantier du prolongement à Castries commence cet hiver (tout comme le Bustram "B4"). Cdlt, Lyon-St-Clair [Hon hon hon] 20 décembre 2025 à 11:37 (CET)
- Merci Triton et Lyon-St-Clair pour vos retours, j'intègre vos différentes remarques. Si vous voyez une expression plus adaptée que "correspondance courte par voie publique" je suis preneur. Je laisse de côté, au moins pour le moment, les stations à dédoubler. Je passe la ligne de Bustram en continu et je confirme que les travaux préparatoires ont bien débuté au nord de Vendargues. Zaizone (discuter) 20 décembre 2025 à 19:14 (CET)
- Bonjour Zaizone. Pour « correspondance courte par voie publique » c'est assez dur de résumer, chaque mot étant important.
- Tu peux peut-être mettre « chemin piéton » (ou alors je n'ai pas compris l'expression). Şÿℵדαχ₮ɘɼɾ๏ʁ, samedi 20 décembre 2025 à 21:35 (CET)
SyntaxTerror : j'ai expliqué plus haut : ça désigne les cas de correspondance où faut marcher une courte distance entre deux stations plutôt que d'être quai à quai (ou pour les métro, devoir sortir pour faire la correspondance). Cdlt, Lyon-St-Clair [Hon hon hon] 20 décembre 2025 à 21:37 (CET)
- Bonjour, au passage est-ce qu'il y aurait moyen de corriger File:Tramway de Montpellier 2026.png également ? J'ai fait remonter tonnes d'erreurs mais AtelierGraphe (d · c · b) ne semble pas répondre. Cdlt, Lyon-St-Clair [Hon hon hon] 13 janvier 2026 à 23:52 (CET)
- Merci Triton et Lyon-St-Clair pour vos retours, j'intègre vos différentes remarques. Si vous voyez une expression plus adaptée que "correspondance courte par voie publique" je suis preneur. Je laisse de côté, au moins pour le moment, les stations à dédoubler. Je passe la ligne de Bustram en continu et je confirme que les travaux préparatoires ont bien débuté au nord de Vendargues. Zaizone (discuter) 20 décembre 2025 à 19:14 (CET)
- Bonjour Zaizone et Triton
Drapeau iranien sans emblème
[modifier le code]Article concerné :
Travail demandé par SenseiAC (discuter) le 11 janvier 2026 à 20:49 (CET)
Requête : Bonjour, Dans le même esprit que les autres drapeaux à l'emblème découpé (cf. commons:Category:Flags with cut-out emblem) et tel qu'on peut le voir sur la première image ci-dessous (photo dont je ne suis ni l'auteur ni l'importateur, qui est factuellement de piètre qualité et qui, à ce titre, est menacée de suppression sur Commons), serait-il possible de faire une version du drapeau iranien actuel (deuxième image ci-dessous) avec l'emblème "découpé" (= avec un disque transparent à la place de l'emblème) ? Serait-il possible de faire de même avec le drapeau iranien sans le texte sur la bordure verte et rouge (par exemple en partant du drapeau d'avant 1979 visible en troisième image ci-dessous) ? Et enfin, serait-il possible de faire une version sans emblème mais sans "trou" non plus, bref un simple tricolore vert blanc rouge horizontal (autrement dit, juste remplacer l'emblème du drapeau d'avant 1979 par du blanc) ? Merci d'avance. SenseiAC (discuter) 11 janvier 2026 à 20:49 (CET)
Image(s) à travailler :-
Drapeau de la République islamique d'Iran.
-
Drapeau d'avant 1979.
-
State flag of Iran (1964–1980) with hole.
-
Flag of Iran with hole.
-
Le tricolore simple.
Discussions et avis des Wikigraphistes :
SenseiAC (discuter) 11 janvier 2026 à 20:49 (CET)
- @SenseiAC fait. J'ai ajouté la catégorie et la légende en EN. Je te laisse ajouter les légendes et descriptions FR. Cdlt, --PBrieux (discuter) 11 janvier 2026 à 22:45 (CET)
- Merci
PBrieux :. Mais le deuxième (avec les écritures), il y a un problème dans la position des écritures dans la partie rouge (les écritures sont OK dans la partie verte), donc tu pourrais remettre les écritures au bon endroit ? Aussi, pourquoi les deux "trous" ne sont pas de la même taille, et pourquoi a-t-on pour l'un une fine bordure rouge et l'autre une fine bordure verte ? Les "trous" ne devraient pas avoir de bordure colorée. Enfin, tu pourrais faire le tricolore simple, sans emblème ni "trou" (drapeau qui, de fait, ressemblera au drapeau hongrois à l'envers) ? Merci d'avance. SenseiAC (discuter) 11 janvier 2026 à 23:29 (CET) - Je retire la demande concernant le tricolore simple, le fichier existe déjà. Reste juste le reste à ajuster. SenseiAC (discuter) 11 janvier 2026 à 23:32 (CET)
- @PBrieux : ton File:Flag of Iran cut out.svg a le texte de la partie rouge placé en dessous du trou.
- @SenseiAC : il faudrait des sources secondaires montrant que l'usage de ce drapeau troué est répandu, avoir une seule photo ne me semble pas suffire. C'est d'ailleurs la seule que j'aie trouvée avec ce drapeau troué, même si elle semble reprise par quelques sources, dont peu qui soient notoires (certaines ayant pris l'image sur Commons).
- Créer une image basée sur une interprétation personnelle est encore pire que de le faire dans le texte d'un article.
- Si certains contestent à l'occasion ce qui est écrit et que ça peut être facilement retiré, ce n'est quasiment jamais fait pour les fichiers venant de Commons, et une image a beaucoup plus d'impact que du texte.
- C'est d'ailleurs un véritable problème quand ça concerne les cartes, beaucoup trop ne citent aucune source et il y a énormément de cartes trompeuses, parfois sciemment. Şÿℵדαχ₮ɘɼɾ๏ʁ, lundi 12 janvier 2026 à 08:48 (CET)
- Effectivement mon logiciel me fait des misères. J'ai beau télécharger à nouveau le svg avec les écritures, il me descend la seconde ligne pour une raison inconnue. Aux vues du commentaire de Syntax, je me suis enlevé de la requête et ai demandé la suppression des deux drapeaux (qui sont inutiles pour le moment car incorrects - désolé)
- En ce qui concerne la réalisation, je suis tout de même de l'avis qu'un tricolore simple ne souligne pas assez la découpe de l'emblême (et peut amener des confusions). Un disque transparent est communément admis dans la catégorie que tu mentionnes SenseiAC ( commons:Category:Flags with cut-out emblem) afin de souligner qu'il s'agit bien d'une découpe et pas d'un drapeau fabriqué originellement à partir de trois bandes. C'était la raison pour laquelle j'ai fait dépassé les disques sur les bandes supérieures et inférieures.
- Pour le moment je vous laisse discuter de la légitimité de la requête entre vous
@SyntaxTerror@SenseiAC et je repasserai plus tard pour apporter mon aide si la demande est maintenue. PBrieux (discuter) 12 janvier 2026 à 13:19 (CET)
PBrieux : Je n'avais aucunement l'intention de mettre le tricolore simple dans cette catégorie de drapeaux "troués". Le tricolore simple était une demande en plus des deux drapeaux "troués", pas une variante destinée à jouer le rôle d'un drapeau troué. Mais comme ce tricolore simple existe déjà, ce n'est plus un problème. SenseiAC (discuter) 12 janvier 2026 à 15:19 (CET)
- Merci
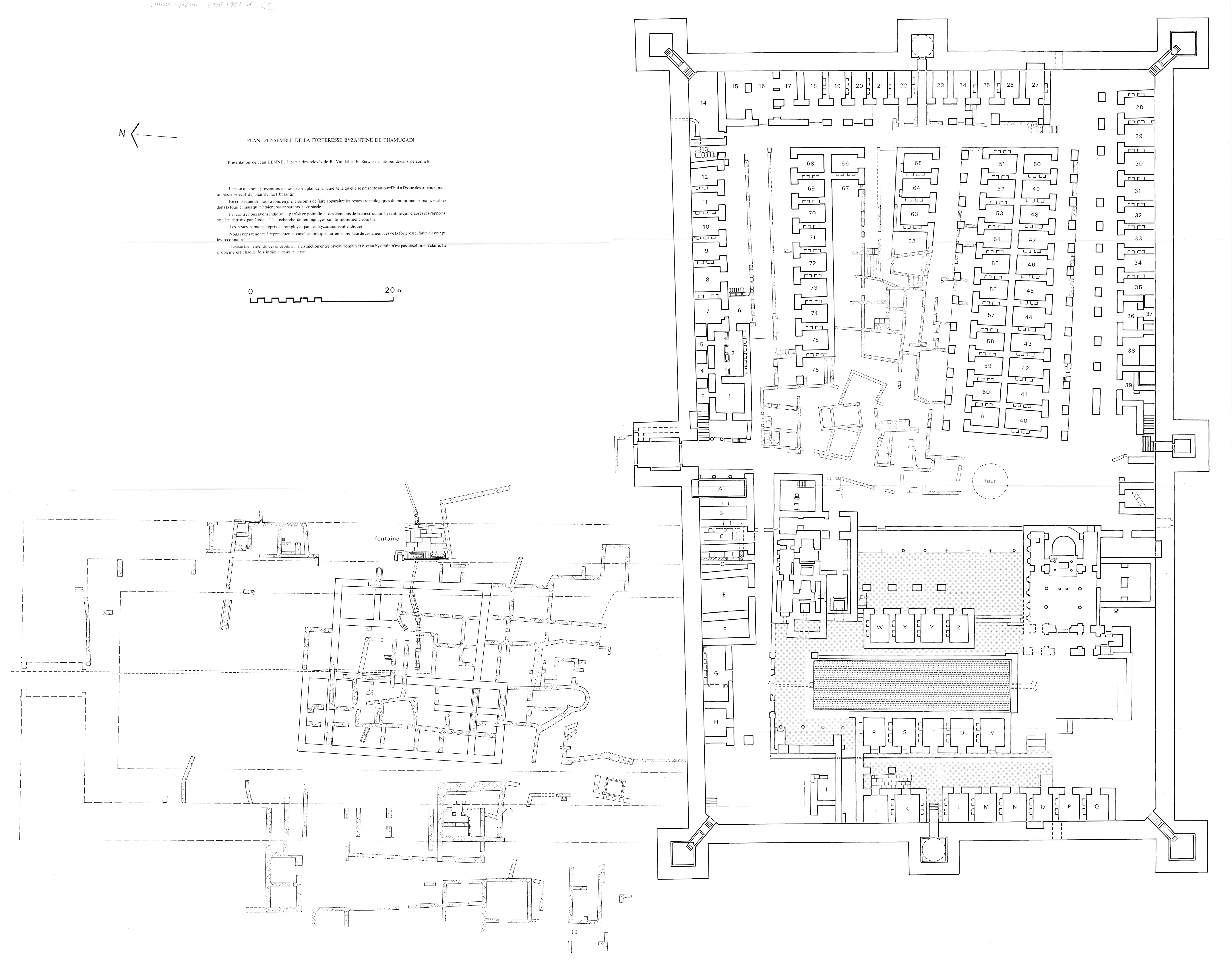
Forteresse byzantine de Timgad
[modifier le code]Article concerné : Forteresse byzantine de Timgad
Travail demandé par Reda Kerbouche (discuter) le 13 janvier 2026 à 23:48 (CET)
Requête : Bonjour, je souhaite solliciter l'Atelier graphique pour la réalisation d'un schéma vectoriel (SVG) de la forteresse byzantine de Thamugadi (Timgad), destiné à illustrer l'article correspondant dans le cadre d'une future demande de labellisation en Article de qualité (AdQ) ; le schéma devra être une restitution schématique originale, claire et lisible, fondée sur le plan principal publié par Jean Lassus, La forteresse byzantine de Thamugadi : Fouilles à Timgad 1938-1956, Paris, CNRS, 1981 , p. 247, ouvrage utilisé comme source de référence pour la rédaction de l'article ; le rendu attendu est un plan simplifié en traits sobres (noir ou gris), sans effets graphiques, respectant les formes et proportions générales, et faisant apparaître l'enceinte, les tours, les portes et les principales structures internes identifiables sur le plan, avec une flèche du nord et, si possible, une indication d'échelle, idéalement décliné en une version muette et une version légendée, afin de garantir une utilisation optimale sur Wikimedia Commons et dans l'article encyclopédique. Merci D'avance.
Image(s) à travailler :-
Brouillon
-
SVG extrait du PDF de l'UNESCO.
-
Plan de la forteresse de Timgad.
Discussions et avis des Wikigraphistes :
- Bonjour Reda Kerbouche.
- Ça va être vraiment très long de convertir ce plan en SVG vu sa complexité (je dirais au moins quatre bonnes heures), à moins d'avoir accès à Photoshop qui peut tracer des lignes à partir d'une image bitmap (le faire avec Inkscape va créer des polygones et le résultat sera dégueu), mais même là, les retouches vont prendre un bon moment.
- Il y a aussi le problème des droits d'auteurs, ce plan étant relativement élaboré, on ne peut pas utiliser la licence c:Template:PD-map.
- J'ai réussi à extraire le plan du PDF [1], on pourrait l'importer sur Commons, mais là encore, il y a le problème des droits d'auteur (je ne le tenterais pas personnellement).
- Le problème est qu'on ne peut même pas demander à Jean Lassus de donner les droits sur son œuvre, il est mort en 1990.
- À mon avis, cette requête doit être refusée, mais attendons de voir ce qu'en disent les autres wikigraphistes.
- Bonne journée, Şÿℵדαχ₮ɘɼɾ๏ʁ, mercredi 14 janvier 2026 à 00:22 (CET)
- Bonjour @SyntaxTerror
- Merci beaucoup pour votre retour détaillé et pour le temps consacré à l'analyse de la requête, ainsi que pour l'extraction du plan depuis le PDF.
- Je comprends parfaitement les réserves exprimées concernant à la fois la complexité technique du plan et les questions de droit d'auteur. Il est en effet clair qu'une vectorisation directe ou un tracé automatique à partir du scan du plan publié par Jean Lassus ne serait ni satisfaisante sur le plan graphique ni acceptable juridiquement pour un import sur Wikimedia Commons.
- En revanche, la demande ne vise pas la reproduction ou la vectorisation fidèle du plan original, mais bien la réalisation d'une restitution schématique originale, redessinée manuellement, simplifiée et non superposable à l'original. L'objectif est de représenter uniquement les éléments factuels et non protégeables (tracé général de l'enceinte, position des tours, des portes et des principales structures internes), avec des choix graphiques propres, dans un style volontairement sobre et générique, conformément aux pratiques habituelles sur Commons pour les plans de sites archéologiques.
- Dans ce cadre, le plan de Jean Lassus servirait uniquement de source de référence scientifique, au même titre qu'une publication utilisée pour rédiger un texte encyclopédique, et non de modèle graphique à reproduire. Le fichier final serait explicitement présenté comme un schéma original fondé sur cette source, sous licence libre, sans reprise de la mise en forme ni des détails graphiques du document de 1981.
- Je suis bien conscient que le travail reste conséquent et que cela peut dépasser le temps disponible, et bien entendu je comprendrai tout à fait si la requête ne peut pas être prise en charge pour des raisons pratiques. Mon intention était simplement de préciser que, du point de vue du droit d'auteur et des règles de Wikimedia Commons, une telle restitution schématique est en principe admissible si elle respecte les critères ci-dessus.
- Merci encore pour votre retour et pour l'attention portée à la demande.
Bien cordialement Reda Kerbouche (discuter) 14 janvier 2026 à 00:34 (CET)- Bonjour Bonjour Reda Kerbouche
est ce que ce niveau de détails est suffisant (cf. brouillon ci-dessus)? Cdlt, --PBrieux (discuter) 14 janvier 2026 à 14:59 (CET)
- Bonjour, J’aurais apprécié que l’ensemble des murs à l’intérieur de la forteresse soit présenté, afin de pouvoir distinguer clairement les structures internes. Les éléments situés à l’extérieur de l’enceinte ne m’intéressent pas dans ce cadre. Cordialement Reda Kerbouche (discuter) 14 janvier 2026 à 15:08 (CET)
- @SyntaxTerrorje n'avais pas réfléchi à ça mais en effet des cartes de ce type semblent couvertes par le droit d'auteur. Triton (discuter) 14 janvier 2026 à 15:45 (CET)
- @Triton D'où ma volonté de rester très global dans le rendu proposé qui symbolise des zones et l'enceinte de façon non détaillée qui peut être observée depuis le ciel ou par photo satellite (cf. Byzantine Fort on the Aqua Septimiana Felix sur G**gle Maps).
- @Reda Kerbouche "J’aurais apprécié que l’ensemble des murs à l’intérieur de la forteresse soit présenté, afin de pouvoir distinguer clairement les structures internes." => J'ai du mal à cerner -très honnêtement et sans malice- la limite entre faire figurer l'ensemble des murs internes de la forteresse et la reproduction complète du plan. PBrieux (discuter) 14 janvier 2026 à 17:05 (CET)
- @PBrieux et Triton : j'ai déjà réalisé des plans du même genre, quoique beaucoup moins complexes.
- Mais connaissant la politique de Commons et surtout les manières de certains de ses « contributeurs » prêts à interpréter les règles de la manière la plus restrictive possible, je suis devenu très méfiant en ce qui concerne le droit d'auteur.
- D'autant plus que là, si jamais le fichier est supprimé, des heures de travail vont être perdues.
- Ça ne me gêne pas de travailler des heures sur une image, mais pas pour qu'elle finisse par être supprimée. Şÿℵדαχ₮ɘɼɾ๏ʁ, mercredi 14 janvier 2026 à 17:33 (CET)
- Je comprends vos préoccupations concernant le droit d’auteur. Il est également possible de téléverser le contenu sur Wikipédia en français. Reda Kerbouche (discuter) 14 janvier 2026 à 18:23 (CET)
- Non, l'import dans Wikipédia ne permet pas de passer outre le droit d'auteur et se limite à quelques cas bien précis. Triton (discuter) 14 janvier 2026 à 18:32 (CET)
- Comme indiqué dans mon message en haut, il n’y a aucun problème à redessiner le plan de la forteresse de manière personnelle et utiliser le ou les originaux comme référence. Un autre ouvrage, dû à un auteur différent, présente d’ailleurs un schéma comparable (Pringle, 1978, repris ici p. 90), et il en existe de nombreux exemples similaires sur commons qui ne sont pas supprimer depuis leur téléversement . Cordialement Reda Kerbouche (discuter) 14 janvier 2026 à 18:51 (CET)
- Non, l'import dans Wikipédia ne permet pas de passer outre le droit d'auteur et se limite à quelques cas bien précis. Triton (discuter) 14 janvier 2026 à 18:32 (CET)
- Je comprends vos préoccupations concernant le droit d’auteur. Il est également possible de téléverser le contenu sur Wikipédia en français. Reda Kerbouche (discuter) 14 janvier 2026 à 18:23 (CET)
- Si vous réalisez une reproduction à votre manière, il s’agit de votre propre travail. De plus, une consultation de G**gle Maps en mode satellite permet d’observer les mêmes compartiments que ceux figurant sur le schéma. Reda Kerbouche (discuter) 14 janvier 2026 à 19:01 (CET)
- @Reda Kerbouche:J'ai reconsidéré cette reauête et j'ai utilisé la vue satellite du site de l'UNESCO pour Timgad [2]. Le résultat est dans mon brouillon. M'indiquer svp si cette nouvelle carte peut être téléversée sur Commons? Merci, cdlt PBrieux (discuter) 19 janvier 2026 à 22:36 (CET)
- @PBrieux : si tu as fait cette image à partir d'une image satellite (quelle qu'elle soit, tu aurais pu prendre Google), c'est ton propre travail, et c'est toi qui détiens les droits d'auteur, il n'y a donc aucun problème pour la télécharger sur Commons (n'oublie pas de citer ta source).
- À mon avis, c'est suffisant pour illustrer l'article, et si le lecteur veut une carte plus détaillée, un lien vers le PDF de Lassus 1981 lui donnera toutes les infos qu'il désire. Şÿℵדαχ₮ɘɼɾ๏ʁ, lundi 19 janvier 2026 à 23:57 (CET)
- Bonjour, je me permets de signaler que les visuels de l'UNESCO sont sous licence CC-By-SA, donc tout à fait importables sur Commons directement. Il est donc possible d'extraire le plan dessiné ici. Cordialement. M0tty [Discuter] 20 janvier 2026 à 02:31 (CET)
- Bonjour M0tty. Encore mieux : on ouvre le PDF avec Inscape et on extrait le SVG (voir ci-dessus).

- @PBrieux : je te laisse éditer ce SVG comme tu le sens.
- En fait, je vais sûrement le télécharger sur Commons tel quel, ça pourra servir à quelqu'un pour faire le plan de Timgad.
- Bonne journée, Şÿℵדαχ₮ɘɼɾ๏ʁ, mardi 20 janvier 2026 à 08:42 (CET)
- @M0tty,@SyntaxTerror j'ai bien entendu vu ce plan durant mes recherches pour une source supplémentaire (et merci M0tty d'ouvrir le débat) mais en regardant les droits sur les images sur ce même site, j'ai cru comprendre que justement cette carte était protégée par le droit d'auteur: https://whc.unesco.org/en/disclaimer/
- Si on est certain du CC je suis aussi pour l'utilisation de la donnée officielle de l'UNESCO. Le temps passé est secondaire par rapport à la justesse des relevés (géomètre UNESCO vs. ma duplication approximative de la vue satellite
)! Du CC-by-SA validé? PBrieux (discuter) 20 janvier 2026 à 09:28 (CET)
- En fait c'est même ce plan qui m'a ramené sur le site de l'UNESCO car j'utilise "filetype:pdf" dans mon moteur de recherche dans ce genre de cas pour n'avoir que des documents, bien souvent des vieux livres scannés, photos, cartes, etc. Ca enlève beaucoup de bruit. Petit tips pour toi @SyntaxTerror mais tu connaissais peut être déjà "filetype:"... PBrieux (discuter) 20 janvier 2026 à 09:36 (CET)
- Bonjour M0tty. Encore mieux : on ouvre le PDF avec Inscape et on extrait le SVG (voir ci-dessus).
- Bonjour, je me permets de signaler que les visuels de l'UNESCO sont sous licence CC-By-SA, donc tout à fait importables sur Commons directement. Il est donc possible d'extraire le plan dessiné ici. Cordialement. M0tty [Discuter] 20 janvier 2026 à 02:31 (CET)
- @Reda Kerbouche:J'ai reconsidéré cette reauête et j'ai utilisé la vue satellite du site de l'UNESCO pour Timgad [2]. Le résultat est dans mon brouillon. M'indiquer svp si cette nouvelle carte peut être téléversée sur Commons? Merci, cdlt PBrieux (discuter) 19 janvier 2026 à 22:36 (CET)
- @SyntaxTerrorje n'avais pas réfléchi à ça mais en effet des cartes de ce type semblent couvertes par le droit d'auteur. Triton (discuter) 14 janvier 2026 à 15:45 (CET)
- Bonjour, J’aurais apprécié que l’ensemble des murs à l’intérieur de la forteresse soit présenté, afin de pouvoir distinguer clairement les structures internes. Les éléments situés à l’extérieur de l’enceinte ne m’intéressent pas dans ce cadre. Cordialement Reda Kerbouche (discuter) 14 janvier 2026 à 15:08 (CET)
- Bonjour Bonjour Reda Kerbouche
- Merci @PBrieux@M0tty et @SyntaxTerror ; encore merci à vous.
@PBrieux La photo présente dans le brouillon correspond bien à ce que je recherche. En revanche, elle ne permet pas d’identifier clairement l’emplacement de la piscine ni celui de la chapelle. S’il était possible d’y ajouter les détails figurant dans le PDF / SVG de l’UNESCO, idéalement sur un arrière-plan blanc, ce serait parfait. Merci d’avance. Reda Kerbouche (discuter) 20 janvier 2026 à 15:31 (CET)- @Reda Kerbouche voilà la carte. Cdlt, --PBrieux (discuter) 22 janvier 2026 à 21:10 (CET)
écriture des aveugles
[modifier le code]Article concerné : s:fr:Page:Buisson - Nouveau dictionnaire de pédagogie et d'instruction primaire, 1911.pdf/157
Travail demandé par Newnewlaw (d · c · b) le 15 janvier 2026 à 11:43 (CET)
Requête : L'image des points en braille et le texte (sous les caractères brailles) devraient facilement être améliorer.
Image(s) à travailler :
Discussions et avis des Wikigraphistes :